













































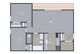
Capital at St. Charles
10 SAN MIGUEL DR, Saint Charles, MO 63303



For more details about this listing, visit the property website.
Similar listings you might like#
Price History#
Price unchanged
The price hasn't changed since the time of listing
2 days on market
Available as soon as Dec 23
Price history comprises prices posted on ApartmentAdvisor for this unit. It may exclude certain fees and/or charges.
Amenities#
Air conditioning
Allows dogs
Fitness center
Pool





