





















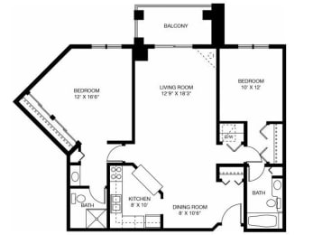
Highland Ridge
2285 Stewart Avenue, St. Paul, MN 55116



For more details about this listing, visit the property website.
Similarly priced listings from nearby neighborhoods#
Price History#
Price unchanged
The price hasn't changed since the time of listing
3 days on market
Available now
Price history comprises prices posted on ApartmentAdvisor for this unit. It may exclude certain fees and/or charges.
Amenities#
Balcony
Fitness center
Garage
Parking
Patio
Pool
Washer/dryer
In unit washer/dryer














