












388 Bridge Street
Brooklyn, NY 11201



Rental management made simple.
Try ASSIST, our all-in-one, AI-powered app. FREE up to 20 units.
Learn moreSchedule a tour
Similarly priced listings from nearby neighborhoods#
Units#
$4,100
Unit 40F
1 bed, 1 bath, 761 sqft
Available now
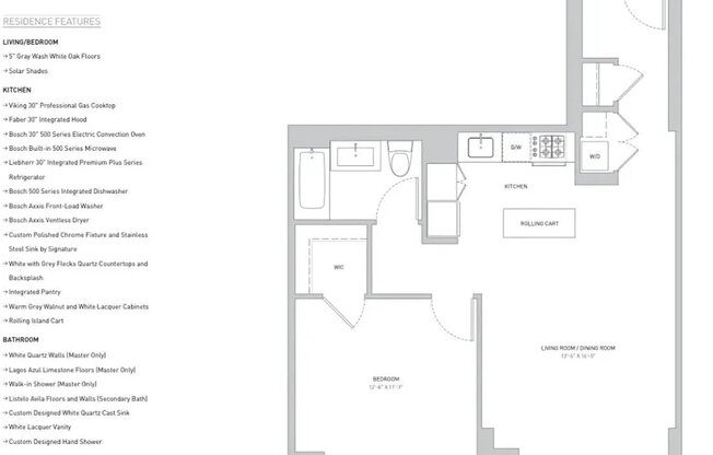
Luxurious, spacious, and serene one bedroom condo at 388 Bridge Street. With over 750 square feet of space, this apartment boasts an expansive living area with an open kitchen concept that includes a Liebherr refrigerator, Viking gas cooktop, and Bosch convection wall oven, white quartz countertops and backsplashes, custom fixtures, and a rolling island that provides flexibility on the kitchen's orientation. Large, sunny windows feature city view of Brooklyn and drench the apartment in natural light. The bedroom is king-sized with a large walk-in closet, and also features a large window with built-in covers for optimal light control. A large mirror, white lacquer vanity with a cast sink, and tiled walk-in shower dress the bathroom. The apartment also features an in-unit Bosch washer/dryer. 388 Bridge Street offers panoramic vistas of nearly all of New York Citys landmarks. Located in the nexus of Brooklyns favorite neighborhoods like Boerum Hill, Fort Greene, Brooklyn Heights, and Cobble Hill, the tower offers easy access to Brooklyns vibrant cultural centers, restaurants, parks, and transportation access to 13 subway lines, 11 commuter trains, and 22 Citi bike stations. A vast array of amenities includes a grand fully-attended lobby, a rooftop viewing terrace, a Lounge/Party Room, a Gym, and a 5th Floor Outdoor Terrace with a BBQ grilling deck and a separate childrens play area. The application process requires condo board approval, which can take up to three weeks. In addition to the aforementioned fees, first month's rent and security deposit are due at signing.
Price History#
Price unchanged
The price hasn't changed since the time of listing
0 days on market
Available now
Price history comprises prices posted on ApartmentAdvisor for this unit. It may exclude certain fees and/or charges.
Amenities#
Popular searches
Pet Friendly Apartments New York
499 apartments starting at $1,500/month
Studio Apartments New York
592 apartments starting at $1,300/month
1 Bedroom Apartments New York
1,824 apartments starting at $600/month
2 Bedroom Apartments New York
898 apartments starting at $1,360/month
3 Bedroom Apartments New York
416 apartments starting at $1,700/month
Cheap Apartments New York
3,288 apartments starting at $600/month
Short Term Rentals New York
382 apartments starting at $1,000/month
Houses for Rent New York
30 apartments starting at $600/month
Nearby neighborhoods
Bedford–Stuyvesant Apartments
95 apartments starting at $1,350/month
Boerum Hill Apartments
21 apartments starting at $3,850/month
Brooklyn Heights Apartments
31 apartments starting at $3,000/month
Crown Heights Apartments
59 apartments starting at $2,000/month
East Village Apartments
51 apartments starting at $2,600/month
Financial District Apartments
94 apartments starting at $3,250/month
Gowanus Apartments
45 apartments starting at $2,200/month
Gramercy Apartments
45 apartments starting at $3,500/month
Lower East Side Apartments
28 apartments starting at $2,895/month
Park Slope Apartments
22 apartments starting at $2,500/month
Soho Apartments
18 apartments starting at $3,500/month
Williamsburg Apartments
123 apartments starting at $1,200/month
Nearby subway stations
Borough Hall Station (4, 5 Lines) Apartments
183 apartments starting at $2,646/month
DeKalb Av Station (B, Q, R Lines) Apartments
202 apartments starting at $2,600/month
Hoyt St Station Apartments
204 apartments starting at $2,646/month
Hoyt-Schermerhorn Sts Station Apartments
206 apartments starting at $2,646/month
Jay St-MetroTech Station (A, C, F Lines) Apartments
193 apartments starting at $2,646/month
Jay St-MetroTech Station (R Line) Apartments
195 apartments starting at $2,646/month
Nearby cities
Bronx Apartments
115 apartments starting at $600/month
Brooklyn Apartments
890 apartments starting at $1,000/month
Camden Apartments
26 apartments starting at $995/month
Jersey City Apartments
865 apartments starting at $1,150/month
Manhattan Apartments
1,886 apartments starting at $1,400/month
New York Apartments
3,260 apartments starting at $600/month
Philadelphia Apartments
3,562 apartments starting at $475/month
Queens Apartments
328 apartments starting at $1,500/month
West New York Apartments
39 apartments starting at $1,695/month
Nearby universities
ASA College Apartments
204 apartments starting at $2,646/month
City Tech Apartments
181 apartments starting at $2,646/month
Pace University Apartments
170 apartments starting at $2,750/month
Pratt Institute Apartments
137 apartments starting at $2,600/month
St Francis College Apartments
192 apartments starting at $2,500/month
Popular metro areas
Baltimore Metro Apartments
3,145 apartments starting at $500/month
Boston Metro Apartments
8,336 apartments starting at $895/month
New York Metro Apartments
5,172 apartments starting at $600/month
Philadelphia Metro Apartments
4,381 apartments starting at $475/month
Pittsburgh Metro Apartments
2,591 apartments starting at $400/month
Washington Metro Apartments
6,403 apartments starting at $879/month














