























475-487 S. Meadowbrook Dr
San Diego, CA 92114



Rental management made simple.
Try ASSIST, our all-in-one, AI-powered app. FREE up to 20 units.
Learn moreSchedule a tour
Similar listings you might like#
Units#
Price History#
Price raised by $50
An increase of +2.71% since listing
23 days on market
Available as soon as Apr 10
Current
$1,895
Low Since Listing
$1,845
High Since Listing
$1,895
Price history comprises prices posted on ApartmentAdvisor for this unit. It may exclude certain fees and/or charges.
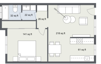
Description#
Discover your dream home at Arroyo Vista, a gated garden-style apartment community in Southeast San Diego. Our pet-friendly San Diego apartments feature modern upgrades and resort-style amenities. Upgraded Apartment Homes Each apartment includes stainless steel kitchen appliances with dishwasher, refinished original cabinets, wood-style flooring, brushed nickel fixtures, custom paint, ceiling fans, and off-street parking. Select units offer private patios for outdoor enjoyment. Prime San Diego Location: Located at 475-487 S. Meadowbrook Drive, near Paradise Hills with easy I-805 freeway access: 15-20 minutes to Downtown San Diego, Coronado, North Park, Mission Valley, Lake Murray 6 miles to Naval Base San Diego, US Naval Amphibious Base 25 minutes to San Diego International Airport Minutes to San Diego State University, Southwestern College, Cuyamaca College Community Amenities: ✓ Gated community for security and peace of mind ✓ Spacious courtyard with FREE WiFi ✓ BBQ and picnic area for gatherings ✓ Dog run for pet exercise and play ✓ Onsite laundry room ✓ Large communal areas for relaxation ✓ Off-street parking included ✓ Virtual 3D tours available All Dogs Welcome: Pet-friendly apartments with no breed or weight restrictions. Pet deposit $250, monthly pet rent $55 per pet. Explore San Diego: Minutes to Mission Trails Regional Park (7,220 acres), Gaslamp Quarter nightlife, Little Italy dining, Balboa Park, Pacific Beach, Mission Beach, USS Midway Museum, and San Diego Zoo. Home Features: - Stainless steel appliances including dishwasher - Refinished original cabinets - Wood-style flooring throughout - Brushed nickel fixtures - Custom paint colors - Ceiling fans - Private patios (select homes) - Off-street parking
Listing provided by AppFolio
Amenities#
Popular searches
Cheap Apartments La Presa
20 apartments starting at $1,400/month
Nearby neighborhoods
College Area Apartments
223 apartments starting at $1,375/month
Mid-City Apartments
68 apartments starting at $1,550/month
Normal Heights Apartments
51 apartments starting at $1,650/month
North Park Apartments
213 apartments starting at $1,350/month
Serra Mesa Apartments
38 apartments starting at $2,200/month
Nearby cities
Chula Vista Apartments
244 apartments starting at $900/month
Coronado Apartments
26 apartments starting at $2,600/month
El Cajon Apartments
299 apartments starting at $1,395/month
La Mesa Apartments
197 apartments starting at $1,200/month
Lemon Grove Apartments
27 apartments starting at $1,550/month
National City Apartments
57 apartments starting at $1,495/month
San Diego Apartments
2,913 apartments starting at $615/month
Spring Valley Apartments
35 apartments starting at $1,700/month
Winter Gardens Apartments
20 apartments starting at $1,500/month
Popular metro areas
Las Vegas Metro Apartments
3,584 apartments starting at $600/month
Los Angeles Metro Apartments
13,936 apartments starting at $450/month
Phoenix Metro Apartments
7,104 apartments starting at $599/month
San Diego Metro Apartments
4,096 apartments starting at $615/month





