
























The Barclay
1755 York Ave, New York NY 23F, New York, NY 10128



Schedule a tour
Similarly priced listings from nearby neighborhoods#
Units#
$16,962
Unit A
Studio, 2 baths, 3,450 sqft
Available now
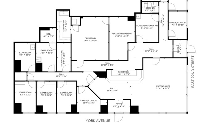
Available for lease, 1755 York Avenue, Suite A is a ground-floor medical office space located in Yorkville on the Upper East Side, on the corner of East 92nd Street and York Avenue. The layout of approximately 3,450 RSF includes a waiting room, reception, procedure room with prep/lab, recovery room, screening room, three offices/consults, five exam rooms, two restrooms - one ADA and the other for staff - and a storage/file room. This suite features a private entrance on York Avenue, a secondary entry on 92nd Street, LVP and tile flooring, as well as overhead and recessed lighting. Currently configured as an Ophthalmology practice and Laser Eye Center, this space is adaptable to any medical specialty. 1755 York Avenue is easily accessible by public transportation via the 4,, 6, and Q train lines at 86th Street and 96th Street and UES bus routes. Parking is available on the block. This suite is proximate to UES hospitals and medical centers.
Price History#
Price unchanged
The price hasn't changed since the time of listing
196 days on market
Available now
Price history comprises prices posted on ApartmentAdvisor for this unit. It may exclude certain fees and/or charges.
Description#
If you’re looking for tranquility and splendor in Manhattan’s Upper East Side, look no further than the luxury refuge known as The Barclay. Here, the bright, airy rooms with city and river views are only the beginning. In addition to the fitness center, residents’ lounge, children’s playroom, 24-hour doorman, attended garage, and complimentary bus service to the Second Avenue Q Line, this one-of-a-kind building features a rooftop sundeck, greenhouse solarium and enclosed indoor park, perfect for a picturesque private party or relaxing with the kids. Choose a masterfully designed one-, two-, or three-bedroom apartment with many convenient features including custom kitchens and marble bathrooms. Start living the high life today - contact us to tour!
Amenities#
Popular searches
Pet Friendly Apartments New York
653 apartments starting at $1,100/month
Studio Apartments New York
729 apartments starting at $850/month
1 Bedroom Apartments New York
2,314 apartments starting at $800/month
2 Bedroom Apartments New York
1,239 apartments starting at $1,700/month
3 Bedroom Apartments New York
749 apartments starting at $1,250/month
Cheap Apartments New York
4,551 apartments starting at $800/month
Short Term Rentals New York
492 apartments starting at $1,600/month
Houses for Rent New York
22 apartments starting at $800/month
Nearby neighborhoods
Astoria Apartments
92 apartments starting at $2,235/month
Chelsea Apartments
157 apartments starting at $1,535/month
East Harlem Apartments
62 apartments starting at $2,300/month
Flatiron District Apartments
34 apartments starting at $2,700/month
Gramercy Apartments
41 apartments starting at $3,311/month
Hell's Kitchen Apartments
180 apartments starting at $2,250/month
Kips Bay Apartments
56 apartments starting at $2,775/month
Long Island City Apartments
77 apartments starting at $2,300/month
Midtown Apartments
872 apartments starting at $1,535/month
Murray Hill Apartments
123 apartments starting at $2,445/month
Sunnyside Apartments
27 apartments starting at $2,300/month
Upper West Side Apartments
307 apartments starting at $2,300/month
Nearby subway stations
103 St Station (6 Line) Apartments
162 apartments starting at $1,100/month
77 St Station (6 Line) Apartments
309 apartments starting at $1,100/month
86 St Station (4, 5, 6 Lines) Apartments
209 apartments starting at $1,100/month
86 St Station (Q Line) Apartments
205 apartments starting at $1,100/month
96 St Station (6 Line) Apartments
221 apartments starting at $1,100/month
96 St Station (Q Line) Apartments
177 apartments starting at $1,100/month
Nearby cities
Bayonne Apartments
46 apartments starting at $1,205/month
Bronx Apartments
228 apartments starting at $1,000/month
Brooklyn Apartments
1,182 apartments starting at $850/month
Jersey City Apartments
383 apartments starting at $1,265/month
Manhattan Apartments
2,156 apartments starting at $1,038/month
New York Apartments
4,514 apartments starting at $800/month
Philadelphia Apartments
3,143 apartments starting at $500/month
Queens Apartments
817 apartments starting at $800/month
Staten Island Apartments
120 apartments starting at $800/month
Nearby universities
Guttman Community College Apartments
279 apartments starting at $1,850/month
Hunter College Apartments
100 apartments starting at $2,600/month
Julliard Apartments
172 apartments starting at $2,700/month
Marymount Manhattan College Apartments
63 apartments starting at $2,600/month
The Rockefeller University Apartments
119 apartments starting at $2,600/month
Popular metro areas
Baltimore Metro Apartments
2,904 apartments starting at $600/month
Boston Metro Apartments
4,078 apartments starting at $1,000/month
New York Metro Apartments
5,994 apartments starting at $750/month
Philadelphia Metro Apartments
3,817 apartments starting at $500/month
Pittsburgh Metro Apartments
1,882 apartments starting at $400/month
Washington Metro Apartments
6,265 apartments starting at $775/month














