









416 W 52 ST
New York, NY 10019



Rental management made simple.
Try ASSIST, our all-in-one, AI-powered app. FREE up to 20 units.
Learn moreSchedule a tour
Similarly priced listings from nearby neighborhoods#
Units#
$3,850
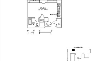
Unit 701
Studio, 1 bath, 580 sqft
Available now
This thoughtfully designed apartment is filled with natural light and offers open city views. The residence features oversized windows, hardwood flooring, central air conditioning, and an in-unit washer and dryer. The apartment is currently occupied, and a minimum of 24 hours' notice is required for showings. The well-planned layout includes a spacious open kitchen surrounded by large windows that bring in abundant natural light. The kitchen offers generous counter and storage space with custom gray and white lacquer cabinetry, elegant Caesarstone countertops, a stainless steel Kohler sink, and premium built-in appliances-creating a perfect balance of modern design and everyday functionality. Situated in the heart of Hell's Kitchen at the corner of Ninth Avenue and 52nd Street, **Nine52** is a newly completed luxury residential building. Nine52 features contemporary architecture along with a wide range of amenities designed to enhance residents' lifestyles. These include a 24-hour doorman, complimentary on-site bike service, and a dedicated co-working space with two conference rooms and three individual workstations. Residents can also enjoy a landscaped courtyard with a peaceful waterfall stream, a state-of-the-art fitness center, spinning studio, yoga room, and a residents' lounge. Additional amenities include a wine cellar with a private dining room, a children's playroom, and a rooftop terrace with unobstructed panoramic city views.
$4,350
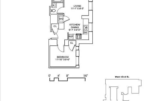
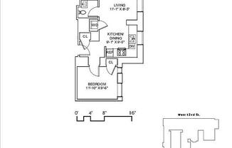
Unit 511
1 bed, 1 bath, 580 sqft
Available now
This stunning one-bedroom, one-bathroom residence boasts soaring 10-foot ceilings, oversized windows, and beautiful stained white oak flooring throughout. The thoughtfully designed layout features a generously proportioned open-concept kitchen framed by expansive windows that flood the space with natural light. Ample counter and cabinet space is complemented by custom gray and white lacquer cabinetry, sleek Caesarstone countertops, a stainless steel Kohler sink, and premium built-in appliances-perfectly blending style and functionality. Nine52 offers modern design and an exceptional collection of amenities curated to elevate everyday living. Residents enjoy a 24-hour doorman, on-site complimentary bike service, a dedicated work space with two conference rooms and three individual workstations, and a serene landscaped courtyard featuring a flowing waterfall stream. Additional amenities include a state-of-the-art fitness center, spinning and yoga rooms, a residents' lounge, wine cellar with private dining room, playroom, and a rooftop terrace showcasing unobstructed, expansive city views. Non refundable application fee of $750 and refundable move in deposit of $1000.
Price History#
Price unchanged
The price hasn't changed since the time of listing
2 days on market
Available now
Price history comprises prices posted on ApartmentAdvisor for this unit. It may exclude certain fees and/or charges.
Amenities#
Popular searches
Pet Friendly Apartments New York
499 apartments starting at $1,500/month
Studio Apartments New York
592 apartments starting at $1,300/month
1 Bedroom Apartments New York
1,824 apartments starting at $600/month
2 Bedroom Apartments New York
898 apartments starting at $1,360/month
3 Bedroom Apartments New York
416 apartments starting at $1,700/month
Cheap Apartments New York
3,288 apartments starting at $600/month
Short Term Rentals New York
382 apartments starting at $1,000/month
Houses for Rent New York
30 apartments starting at $600/month
Nearby neighborhoods
Alphabet City Apartments
36 apartments starting at $2,575/month
Chelsea Apartments
142 apartments starting at $1,595/month
East Village Apartments
51 apartments starting at $2,600/month
Gramercy Apartments
45 apartments starting at $3,500/month
Kips Bay Apartments
68 apartments starting at $2,750/month
Long Island City Apartments
74 apartments starting at $2,650/month
Midtown Apartments
771 apartments starting at $1,595/month
Murray Hill Apartments
107 apartments starting at $2,600/month
Soho Apartments
18 apartments starting at $3,500/month
Upper East Side Apartments
275 apartments starting at $2,350/month
Upper West Side Apartments
240 apartments starting at $2,400/month
West Village Apartments
62 apartments starting at $3,000/month
Nearby subway stations
49 St Station Apartments
239 apartments starting at $2,250/month
50 St Station (1 Line) Apartments
216 apartments starting at $2,250/month
50 St Station (C, E Lines) Apartments
247 apartments starting at $2,250/month
57 St-7 Av Station Apartments
200 apartments starting at $2,250/month
59 St-Columbus Circle Station (1 Line) Apartments
214 apartments starting at $2,575/month
7 Av Station (D, E Lines) Apartments
199 apartments starting at $2,250/month
Nearby cities
Bronx Apartments
115 apartments starting at $600/month
Brooklyn Apartments
890 apartments starting at $1,000/month
Camden Apartments
26 apartments starting at $995/month
Jersey City Apartments
865 apartments starting at $1,150/month
Manhattan Apartments
1,886 apartments starting at $1,400/month
New York Apartments
3,260 apartments starting at $600/month
Philadelphia Apartments
3,562 apartments starting at $475/month
Queens Apartments
328 apartments starting at $1,500/month
West New York Apartments
39 apartments starting at $1,695/month
Nearby universities
Berklee College of Music-NYC Apartments
112 apartments starting at $2,250/month
Guttman Community College Apartments
238 apartments starting at $1,850/month
John Jay College of Criminal Justice Apartments
156 apartments starting at $2,575/month
Julliard Apartments
131 apartments starting at $2,500/month
Touro College Apartments
197 apartments starting at $1,850/month
Popular metro areas
Baltimore Metro Apartments
3,145 apartments starting at $500/month
Boston Metro Apartments
8,336 apartments starting at $895/month
New York Metro Apartments
5,172 apartments starting at $600/month
Philadelphia Metro Apartments
4,381 apartments starting at $475/month
Pittsburgh Metro Apartments
2,591 apartments starting at $400/month
Washington Metro Apartments
6,403 apartments starting at $879/month














