
















622-26 W. Roscoe
622 W Roscoe St, Chicago, IL 60657



Schedule a tour
Similarly priced listings from nearby neighborhoods#
Units#
$2,350
Unit 626-2F
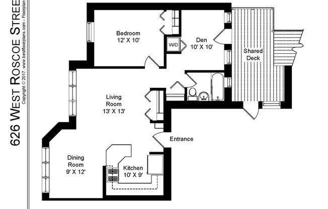
1 bed, 1 bath, 800 sqft
Available April 1
Price History#
Price unchanged
The price hasn't changed since the time of listing
4 days on market
Available as soon as Apr 1
Price history comprises prices posted on ApartmentAdvisor for this unit. It may exclude certain fees and/or charges.
Description#
Situated at 622-26 W. Roscoe, this residence offers an appealing living experience with various distinctive features. Residents can enjoy the convenience of in-unit laundry, bringing a practical touch to their daily routines. The condo-quality units provide a high standard of living, ensuring a comfortable and well-maintained home. Central air and gas-forced heat enhance the overall climate control, while a porch space adds a charming outdoor element to the living space. A video intercom system contributes to the security and convenience of the residence. Commuting is made effortless, with the Addison Red Line Station less than a half-mile away. The location is particularly convenient for those who rely on public transportation, with the Belmont Red/Brown/Purple Line Station also within a half-mile radius. Multiple nearby bus routes offer additional commuting options, including #77, #151, #22, #36, #8, #134, #146, and #152. This residence stands out for its resident-friendly policies, with NO security deposit required and a warm welcome extended to feline companions. Storage options might be available for rent (inquire for availability), providing flexibility for residents' needs. A 24-hour Emergency Call Center ensures continuous support for residents. Beyond the residence, the surrounding area boasts abundant shopping and nightlife options, adding to the vibrant atmosphere. Living at 628 W Roscoe offers the perfect blend of convenience, comfort, and a prime Chicago location
Listing provided by AppFolio
Amenities#
Popular searches
Pet Friendly Apartments Chicago
1,963 apartments starting at $895/month
Studio Apartments Chicago
818 apartments starting at $650/month
1 Bedroom Apartments Chicago
2,290 apartments starting at $650/month
2 Bedroom Apartments Chicago
1,195 apartments starting at $995/month
3 Bedroom Apartments Chicago
439 apartments starting at $638/month
Cheap Apartments Chicago
4,015 apartments starting at $625/month
Short Term Rentals Chicago
103 apartments starting at $650/month
Houses for Rent Chicago
69 apartments starting at $650/month
Nearby neighborhoods
East Garfield Park Apartments
21 apartments starting at $950/month
Edgewater Apartments
165 apartments starting at $900/month
Hermosa Apartments
19 apartments starting at $1,315/month
Humboldt Park Apartments
48 apartments starting at $1,100/month
Irving Park Apartments
42 apartments starting at $1,000/month
Lincoln Park Apartments
71 apartments starting at $1,200/month
Lincoln Square Apartments
74 apartments starting at $1,195/month
Logan Square Apartments
93 apartments starting at $1,000/month
Near North Side Apartments
519 apartments starting at $945/month
Uptown Apartments
149 apartments starting at $1,000/month
West Ridge Apartments
76 apartments starting at $700/month
West Town Apartments
163 apartments starting at $1,250/month
Nearby cities
Addison Apartments
18 apartments starting at $1,200/month
Calumet City Apartments
21 apartments starting at $1,000/month
Chicago Apartments
4,004 apartments starting at $638/month
Cicero Apartments
17 apartments starting at $875/month
Des Plaines Apartments
49 apartments starting at $1,380/month
Evanston Apartments
149 apartments starting at $1,100/month
Hammond Apartments
22 apartments starting at $725/month
Milwaukee Apartments
934 apartments starting at $585/month
Oak Park Apartments
43 apartments starting at $1,100/month
Nearby universities
DeVry University-Illinois Apartments
52 apartments starting at $925/month
Harry S Truman College Apartments
191 apartments starting at $975/month
Popular metro areas
Chicago Metro Apartments
4,947 apartments starting at $638/month
Milwaukee Metro Apartments
2,122 apartments starting at $585/month












